
Next show:
Saturday, October 25
Punch Project
Thorpe, WA


Little H Collective is teacher-designer-woodworker-musician Stephen Harrison. The woodworking informs the music, the music informs the design, and all of this is influenced by my work at an elementary school in the Pacific Northwest.LET'S MAKE SOMETHING TOGETHER• Logos and branding for business or pleasure.
• Album covers, t-shirt designs and gig posters.
• Custom woodworking - furniture, lighting, storage and instruments.


Avalanche Pass was released on Sun Cru Music in February 2025.A source of inspiration for this work was the Robert Frost Trail in Vermont. There, the path leads through soft meadows and across a quiet stream. All things around you inspire and uplift. You feel serene and exhilarated. You look up from a bed of leaves, see the forest canopy swaying. In the fading light, ferns wave in the periphery. You become what you are: the still point of the turning world.Back on the road, as you drive east on VT Route 125, everything changes. The forest is dark and feels very close. Moose pass among the trees and over the wet ground. A deepening darkness emerges on the other side of Middlebury Gap, and there are houses tucked into the land that look like they never see the sun. “125 East” gives expression to the realization of night along this strange yet familiar road. It is the mystical Every Road of our dreams.
Avalanche Pass was released on Sun Cru Music in September 2023.I spoke with Dakota Brown about the album and my musical journey later that fall.Sun Cru head, Josh Collins had this to say..."Subtly gorgeous, healthful, a boon to inner and outer life, Little H Collective’s new guitar and drone album, Avalanche Pass, is a 25-minute float on ripples of body-spirit phenomena that naturally merge into a welcoming flow of joy and tranquility."
Beyond the Wonder continues the journey that was started in Collect and Wonder. We are now floating through the trees and tumbling through space. Recorded with my latest guitar build, Brian Eno's fantastic Bloom app, and a bevy of Chase Bliss effects pedals.Enjoy.
The Trees Did Not Ask To Be Watched is best listened to in a forest.Please enjoy on Bandcamp.
Electric Raccoon is the remnants of an improv that remained in Habit.Please enjoy on Bandcamp.
Susurration is my latest exploration of stacked reverb and delay. The Chase Bliss Mood and Habit played large roles on this track.I love the organic nature of the Habit in how it brings back elements of sound from the past.Please enjoy on Bandcamp.
Collect and Wonder was released June 2, 2022. It is available on Bandcamp and many of the usual streaming services.Music for when you visit the places at the outer reaches and great depths. The map is your guide, but the route is yours to choose. Be sure to pause along the way. Fill your reserves. Prepare for the trip through the tunnel, and be ready for what you find when you come out the other side.Hi-res file of the cover art available with album purchase. Enjoy!
Collected is available on Bandcamp. Four tracks of meditative music to put into your ears. Enjoy peacefully.Some kind words from my friend Jonathan Liss:Sheltering
You have a really great way with making space in your music. I also think the way melodies creep up out of nowhere and then mutate into something else is captivating.Still Prevails
The harmonics. You are a colorist in your music. I feel the connection between the tone and the way you use transparency, saturation and contrast in your visual work.
West Midwest is a long distance collaboration with Chicago area resident Jonathan Liss.I started some songs and he started others.
The Freq Out will return.Archives of previous sessions are available on YouTube.

Geometry and layered colors are where it’s at for me. Reach out if you need a logo, album cover or some wall art.Favorite fonts come from Kern Club, Oh No Type Co., House Industries, Pangram Pangram.

I love building with reclaimed wood. 60 year old Douglas fir is my current favorite. I love how it smells and feels so I leave it unfinished most times.Same goes for rosewood when it comes to necks. So silky smooth all on its own.
The Trey Guitar
Built in 2002, I gifted this guitar to Trey Anastasio of Phish. The story follows below.
I delivered this guitar to Trey Anastasio as a gift in the June of 2002. I had hoped to give it to him at his show in Seattle a month earlier. His management told me he would be too busy with the first night of tour and it wouldn’t work out. I was persistent. I told them I would be in Vermont for most of the summer and could deliver it to Phish headquarters. They agreed to this plan. I headed north from the summer camp where I was working and arrived at a nondescript building in Burlington. John Paluska pulled into the parking lot right after me and we walked into the office together. John asked me if I really wanted to give away this guitar. At that moment I wasn’t more sure of anything else.I didn’t get to meet Trey that day, but John assured me it would get delivered. That’s all I hoped for.Many months passed. Then an envelope from Dionysian Productions showed up in my mailbox. It contained a thank you note from Trey on the back of a Jim Pollock-designed postcard. I’ll post a photo of the card along with other shots of the guitar later this week. I have just a few other photos. I’ll also tell the story about the wood I used for the neck.From time to time I wonder where the guitar is now. Does it ever get played? I’d love to play it again, just to hear that tone another time.
The body is entirely African ribbon grain mahogany. It is hollow except for under the bridge and pickups. The strings are anchored on the back and hit the bridge at an angle.(This was the fourth guitar I made with this arrangement. I still have the one I built in 1996. The resonance through the body is so strong. I love playing it while sitting down. It sends the best vibrations through me.)The neck heel has a rosewood cap. I wanted to have a deep neck pocket, but there was not enough maple from the neck blank to double up at the heel. Rather than try to match the maple, I went with the high contrast of the rosewood.The full story of the maple neck comes at the end. I’ll tease it by saying it involves a piano and a chainsaw.This guitar features the fancier lower case h motif that reflects my Little H Collective branding. I still have the curved chunk that came off the very top. It sits next to my workbench as a reminder and a connection back to this guitar.These photos were taken outside my cabin at Camp Wachusett in Vermont where I was working at the time.
I’m going to finish by telling you the story of the wood that became the neck. Or, how a chainsaw met an upright piano in the woods of Vermont.In the summer of 2001 I was working as a camp counselor in central VT. The uninsulated dining hall was home to two upright pianos that spent decades weathering the extremes of New England summers and winters. During that summer 20+ years ago it was decided to toss the piano that was the most out of tune. A crew assembled and hoisted the instrument onto the back of a pickup truck. With a mighty heave and a cacophony of notes, the piano came to its final resting place in the camp landfill. The back with its beautifully figured maple support beams was in full view.This wood was too good to leave behind.I returned from the maintenance building with a Husqvarna chainsaw and prepped for surgery. The spinning chain easily cut through the beams. What happened next created one of the most glorious sounds I have ever heard. The vibration of the saw against the cast iron sound board was immense. With the wood out of the way I slashed the saw back and forth across the iron. I only wish I had a recording of that otherworldly noise.

I sling my wares here. Shirts and small wooden items mostly. My Instagram is the best place to watch for drop announcements.




I love making stuff to give to friends. Here you go, friends.Grab a fresh wallpaper for your phone or desktop. Download here.

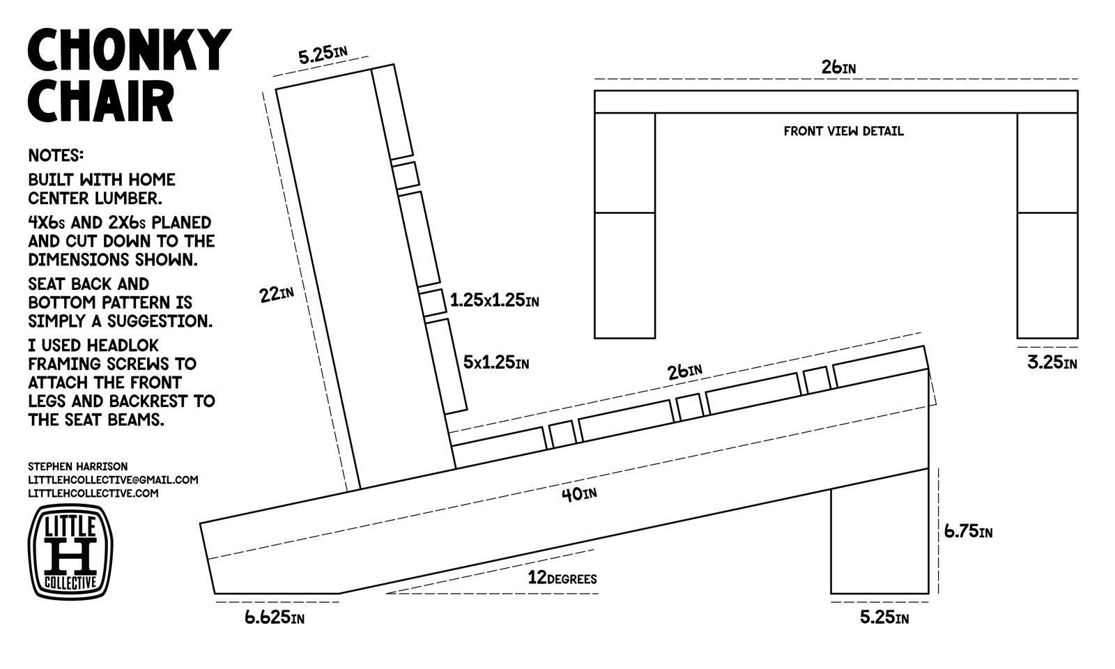
I made a Chonky Chair for my patio. Here are some plans so you can make one also.If you live anywhere near Seattle I could be convinced to make one for you. Let’s talk.

I am always open to requests for work. Please share your contact information and brief description of your project.Thank you,
Stephen
I appreciate your interest in my work.
I will get in touch soon!